TORREVIEJA
La primera fase de urbanización del plan de 7.500 casas de La Hoya en Torrevieja estará acabada en un año
La urbanizadora del proyecto de Torrevieja valla el perímetro y la maquinaria pesada inicia el desbroce de 1,8 millones de metros cuadrados
La UTE ubica el acceso principal a las obras presupuestadas en 60 millones de euros, en la calle José Carreras, frente a Jardín del Mar

Maquinaria pesada de desbroce. Al fondo la casa tridicional de la finca de secano de La Hoya, situada en el centro del sector / D. Pamies

La primera fase de la construcción de la urbanización de la Hoya Sector 20 estará concluida el próximo verano y será compatible con el desarrollo de solares urbanos y comerciales.
Propiedad
La ilicitana Corpic, TM Grupo Inmobiliario y Eurovillas son los socios mayoritarios de la Unión Temporal de Empresas que tiene adjudicada la condición de urbanizador -en una proporción aproximada del 40%,30% y 10% de la propiedad del sector por ese orden-. El resto son mercantiles de menor entidad y particulares ligados a los titulares originales de esta gran finca de secano.
Comercial y residencial
Además de la primera fase de las obras de urbanización, la UTE va a promocionar el nuevo suelo urbano en dos frentes. La nueva zona comercial de cien mil metros cuadrados que se concentra en paralelo a la CV-95, entre la calle José Carreras y la urbanización San Luis, y en el extremo opuesto, junto al puente sobre la N-332 en la avenida de las Víctimas del Terrorismo con el desarrollo de suelo residencial.

Obras del sector junto a la calle José Carreras frente a Jardín del Mar donde está instalado el principal acceso a la actuación / D. Pamies
Bertolín y Eifagge
Las obras de urbanización han sido encomendadas por la UTE a las empresas Grupo Bertolín y Eiffage España y su presupuesto roza los sesenta millones de euros, lo que supone un aumento de casi el doble de la propuesta que se manejaba hace solo tres años, antes de la pandemia y la escalada de precios.
Maquinaria pesada vallado
Un despliegue muy importante de maquinaria pesada ha comenzado a trabajar en distintos puntos sobre los 1.800.000 metros cuadrados con los que cuenta este extenso sector urbanístico de Torrevieja con capacidad para levantar 7.490 viviendas, el 25% de ellas -siempre según el proyecto aprobado por el Ayuntamiento y la Generalitat-, deberán ser de protección oficial. También se ha iniciado el vallado perimetral de todo el sector que ya se ha completado prácticamente en su zona sur, que linda con los barrios residenciales de Jardín del Mar, en la conocida popularmente como «camino de las cabras» -la calle José Carreras en su primer tramo-. También se ha cerrado al paso de vehículos la mayor parte de los principales caminos de la parcela.

Vista aérea del total del sector que ocupa 1,8 millones de metros cuadrados y limitado por el parque natural, la CV-95 y la N-332 / TERRENOS CONSTRUCCION VIVIENDAS LA HOYA TORREVIEJA
Desbroce
Es en paralelo a esta última calle donde ha comenzado el desbroce de miles de metros cuadrados de matorral mediterráneo, en los terrenos situados frente a la urbanización Lago Jardín. La urbanizadora está obligada a preservar docenas de ejemplares de garrofero y olivo que jalonan la finca junto a la CV-95, aunque sea reubicándolos en las futuras zonas verdes del sector.
La empresa deberá desalojar a varios sin techo que tienen montado desde hace varios años un pequeño campamento junto a la torre de un antiguo transformador eléctrico en el centro del sector.
350.000 metros cuadrados
La actuación urbanística, que inició su tramitación a finales de los años 90, contempla cien mil metros cuadrados de suelos de equipamiento, que entre otras dotaciones, prevén terrenos para la futura construcción de un colegio de Infantil y Primaria y de otro centro de Secundaria. También se proyectan 350.000 metros cuadrados de zonas verdes concentradas junto al perímetro de protección del parque natural de las lagunas de Torrevieja y La Mata, en los flancos noreste y norte del sector, donde la actuación linda directamente con la zona de mayor protección ambiental del humedal y la pinada de repoblación plantada en los años 50 del pasado siglo, pulmón verde de esta zona del término municipal. La actuación debe garantizar a través de varias rotondas sobre la CV-95 la accesibilidad al sector, además de garantizar una franja de servidumbre con esa carretera y una infraestructura de pluviales diferenciada de la red de alcantarillado para evitar inundaciones.

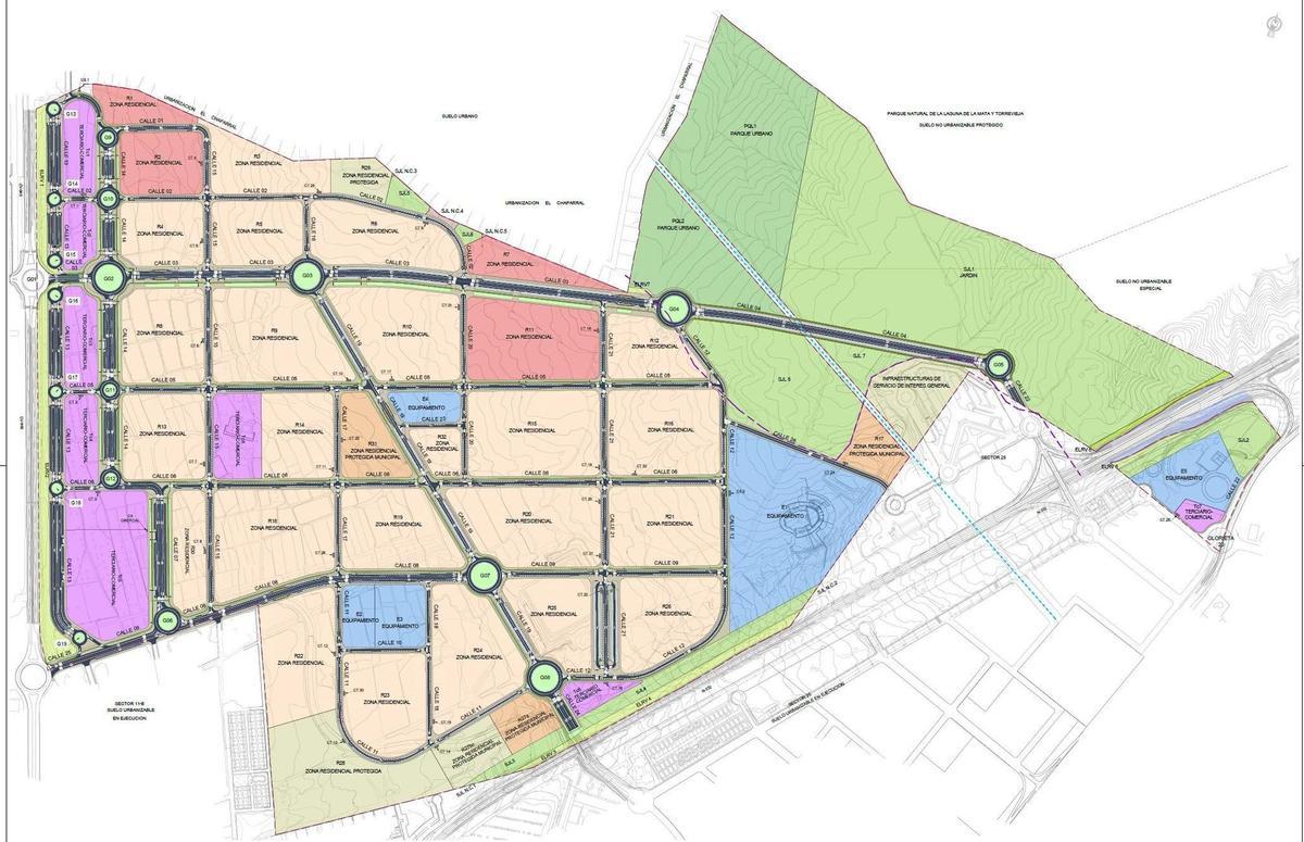
Distribución de usos del suelo en el sector 20 La Hoya, en el que predomina el residencial, el comercial y las zonas verdes, además de algunas zonas dotacionales / información
Bauhaus
Entre los proyectos que podrán iniciarse en paralelo a la urbanización figura la implantación de una tienda de la multinacional Bauhaus. Bart Ginneberge, director general de la firma de bricolaje en España y el alcalde de Torrevieja Eduardo Dolón mantuvieron una reunión en el Ayuntamiento el lunes. El alcalde hizo mención al encuentro solo en sus redes sociales tras la reunión para dar a entender que será la ADL municipal la que controlará la selección de personal. Están previstos 150 puestos de trabajo directos.
EL ALCALDE DE TORREVIEJA EVITA LA FOTO DE INICIO DE OBRA PERO SÍ ACUDE AL ACTO
La firma del acta de inicio de obras estaba prevista el pasado lunes a las 10.30. Aunque la UTE y la empresa implicadas en el desarrollo del sector confiaban en un respaldo simbólico por parte del Ayuntamiento, finalmente «por motivos de agenda» el alcalde y diputado autonómico Eduardo Dolón (PP) acudió al acto a la 1 de la tarde. Su equipo de comunicación evitó la difusión de su presencia en el acto y «la foto» con los promotores del que va a ser el principal desarrollo urbanístico de la ciudad en décadas y que, al menos sobre plano, cuenta con una reserva de 1.800 vivienda públicas
- El Ayuntamiento de Torrevieja da licencia para una tienda de la cadena Bauhaus y dos supermercados en La Hoya
- Torrevieja será la sede del Low Festival 2026 tras su salida de Benidorm
- Una promotora proyecta un centro comercial en un terreno de 44.000 metros cuadrados en Benijófar
- Investigan la muerte en su casa de Torrevieja de una menor de 17 años que estudiaba en el IES Mediterráneo
- Torrevieja licita la redacción del proyecto para construir el primer aparcamiento subterráneo de La Mata
- Torrevieja pide a la Generalitat abrir otro acceso al Hospital desde la CV-95 para rebajar los atascos
- Auroras boreales cerca de Alicante: MeteOrihuela comparte este vídeo que califica de 'impresionante
- El turismo residencial genera en el área de salud de Torrevieja una deuda de 2,3 millones en el último año
